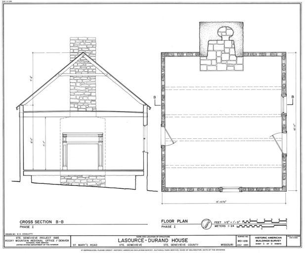
MAKE A MEME View Large Image ...Durand House Measurements--Ste Genevieve.jpg A drawing showing the measurements of the Lasource-Durand House in Ste Geneviève Missouri Phase I of the building is being preserved as a museum Historic American Engineering Record National ...
View Original:Lasource-Durand_House_Measurements--Ste_Genevieve.jpg (1496x1242)
Download: Original    Medium    Small Thumb
Courtesy of:commons.wikimedia.org More Like This
Keywords: Lasource-Durand House Measurements--Ste Genevieve.jpg A drawing showing the measurements of the Lasource-Durand House in Ste Geneviève Missouri Phase I of the building is being preserved as a museum Historic American Engineering Record National Park Service; Record MO-1281 1985 Drawn by W D Cesaletti MO-1281 Lasource-Durand House Building survey drawings Historic American Buildings Survey of Missouri
Terms of Use   Search of the Day