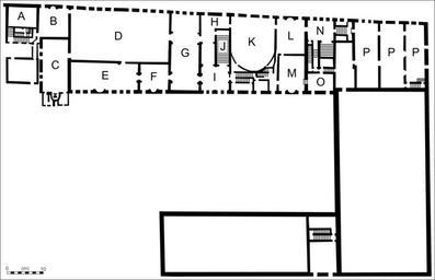
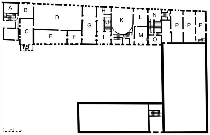
MAKE A MEME View Large Image Palazzo Ducale Venezia Tavola 14, Francesco Zanotto-notxt.svg it Pianta del secondo piano del Palazzo Ducale di Venezia tratta da Il Palazzo Ducale di Venezia illustrato da Francesco Zanotto con incisioni Venezia 1841 A - Archivio segreto B ...
View Original:Palazzo_Ducale_Venezia_Tavola_14,_Francesco_Zanotto-notxt.svg (1374x885)
Download: Original    Medium    Small Thumb
Courtesy of:commons.wikimedia.org More Like This
Keywords: Palazzo Ducale Venezia Tavola 14, Francesco Zanotto-notxt.svg it Pianta del secondo piano del Palazzo Ducale di Venezia tratta da Il Palazzo Ducale di Venezia illustrato da Francesco Zanotto con incisioni Venezia 1841 A - Archivio segreto B - Antichiesetta C - Chiesetta D - Sala del Senato E - Sala del Collegio F - Anticollegio G - Sala delle Quattro Porte H - Andito I - Atrio quadrato J - Scala d'Oro K - Sala del Consiglio dei Dieci L - Sala della Bussola M - Sala dei Tre Capi del Consiglio dei Dieci N - Scala dei Censori O - Sala dei Tre Inquisitori di Stato P - Armamento del Consiglio dei Dieci 2014-07-31 18 49 24 http //books google it/books id Gg5BAAAAcAAJ printsec frontcover hl it v onepage q f false Francesco Zanotto thumb 150px left italian PD-old-100 Floorplans and facades of the Doge's Palace
Terms of Use   Search of the Day